Проектирование дата центров
Основные типы взаимодействия с партнерами при проектировании решений ЛАМПЕРТЦ по строительству ЦОД (дата центров):
|
1 типРАЗГРАНИЧЕННЫЙМы делаем проект только для Помещения Безопасности, а все остальные части проектирует Партнер |
2 типСМЕШАННЫЙМы делаем проект Помещения Безопасности, систем кондиционирования, пожаротушения, а другие части проектирует Партнер
|
3 типКОМПЛЕКСНЫЙМы делаем и сдаем весь комплексный проект под ключ |
Предложение для планируемых дата-центров:
- Ситуация с Заказчиком:
- новый Заказчик,
- Заказчик уже знающий решение LAMPERTZ,
- бюджет проекта в целом,
- другие нюансы.......
- Ситуация по зданию и месту расположения будущего датацентра, максимальная допустимая нагрузка на пол здания.
- Количество планируемых 19” стоек и отдельно стоящего оборудования, планируемого в центр обработки данных.
- Список подсистем в будущем дата центре
Еще до построения нового ЦОД необходимо провести анализ рисков. Определение рисков на нулевом этапе избавит Вас от множества проблем после запуска дата-центра в эксплуатацию. Компания «Exsol» поможет Вам осуществить аудит помещений, предназначенных для размещения ЦОД.
Требования к дата-центрам растут. Для обеспечения безупречной работы телекоммуникационных и ИТ систем недостаточно просто использовать высокотехнологичное оборудование. Гораздо важнее создать структурированную концепцию, разработать и реализовать профессиональный план инфраструктуры ЦОД, в котором будут учтены индивидуальные потребности Заказчика. На этапе создания концепции ЦОД суммируются данные проведенных подготовительных исследований. На основе сделанных выводов предварительно определяются необходимые мероприятия для решения поставленной задачи. Концепция, разработанная компанией «Exsol», гарантирует безопасность и оптимальность предлагаемых решений для конструкции центра обработки данных.
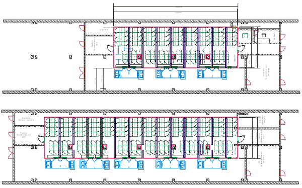
Выбор места для монтажа Data-центра в здании, с возможностью расширения в будущем:

Образец расширяемого Дата центра:

Первый результат – концепция проекта
Помещение безопасности комната Лампертц может быть центром обработки данных, то есть быть основным объемом, в котором весь ЦОД или вся серверная Заказчика и будут существовать. Вместе с тем, центр обработки данных может быть достаточно большим объектом, в этом случае МПФЗ может быть лишь частью комплекса, защищая при этом только критически важное оборудование, остановка которого приведет к остановке всех процессов жизнедеятельности компании.

Конечный результат – рабочий проект


Типы проектов |
Системы |
Временной ресурс |
Зоны ответственности |
Финансы |
||||||
|---|---|---|---|---|---|---|---|---|---|---|
| 1 тип - разграниченный |
|
- - - | - - - | + + + | ||||||
| 2 тип - смешанный |
|
+ + | + + | - - | ||||||
| 3 тип - комплексный |
|
+ + + | + + + | - - - |
Основные этапы создания ЦОД с решением МПФЗ на базе легковозводимых уличных конструкций